聯系方式
地 址:泰興市城東高新技術產業園區
郵 編:—
電 話:0523-82829129
主 頁:www.jsmercodor.com
產品詳情
詳細介紹
產品概述
鑄鐵鑲銅閘門主要用于給排水、防汛、灌溉、水利、水電工程中,用來截止、疏通水流或起調節水位的作 用。
型號表示方式
M □□□□
T I 圓閘門通徑D N (mm)矩形閘門:寬乂高(mm )
安裝形式代號:K-靠壁式(可省略)F-法蘭式B-附壁式
鑄鐵鑲銅閘門FZ-方閘門YZ-圓閘門
結構形式:S-單向升桿式A-單向暗桿式SS-雙向升桿式SA-雙向暗桿式 I 企業代號
產品特點
1、 門體、門框等由灰鑄鐵(或球墨鑄鐵)制成,結構強度高,耐腐蝕性好,承壓能力大(正向承壓:
0.1 MPa ) 0
2、 密封面采用錫青銅精密加工,密封性好,滲水量小:正向0.72L/m - min;反向:1.251 L/m ? min。
3、 品種齊全,適用范圍廣,安裝調試方便。


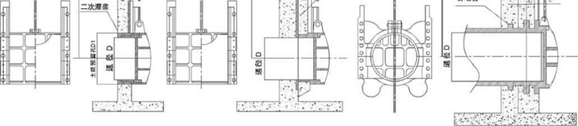
安裝形式
靠壁式(代號K )
土建預留孔比閘門通徑略 大,推薦用于4>2OO- 4> 1200, □300-01000之間的單向閘門 的安裝。
附壁式(代號B )
土建預留孔與閘門通徑相 同,適用于所有規格的單向及雙 向閘門的安裝<|> 1200和□ 1000 以上規格推薦使用此種安裝方式。
法蘭式(代號F )
適用所有規格的單向及雙向 圓閘門的安裝,法蘭標準:JB/ T81-94, PN0.25MPa,當穿墻 管為鋼管時,需與閘門法蘭配制 —只鋼法蘭,安裝時兩法蘭裝配 后與穿墻管焊接。


